Nos avis clients
Nos avis clients
< class="title__content">
0

 Très beau terrain vue montagne à Figari avec PC accordé pour villa avec piscine et pool house.

Figari (20114)
Réf : VT.MR.270923

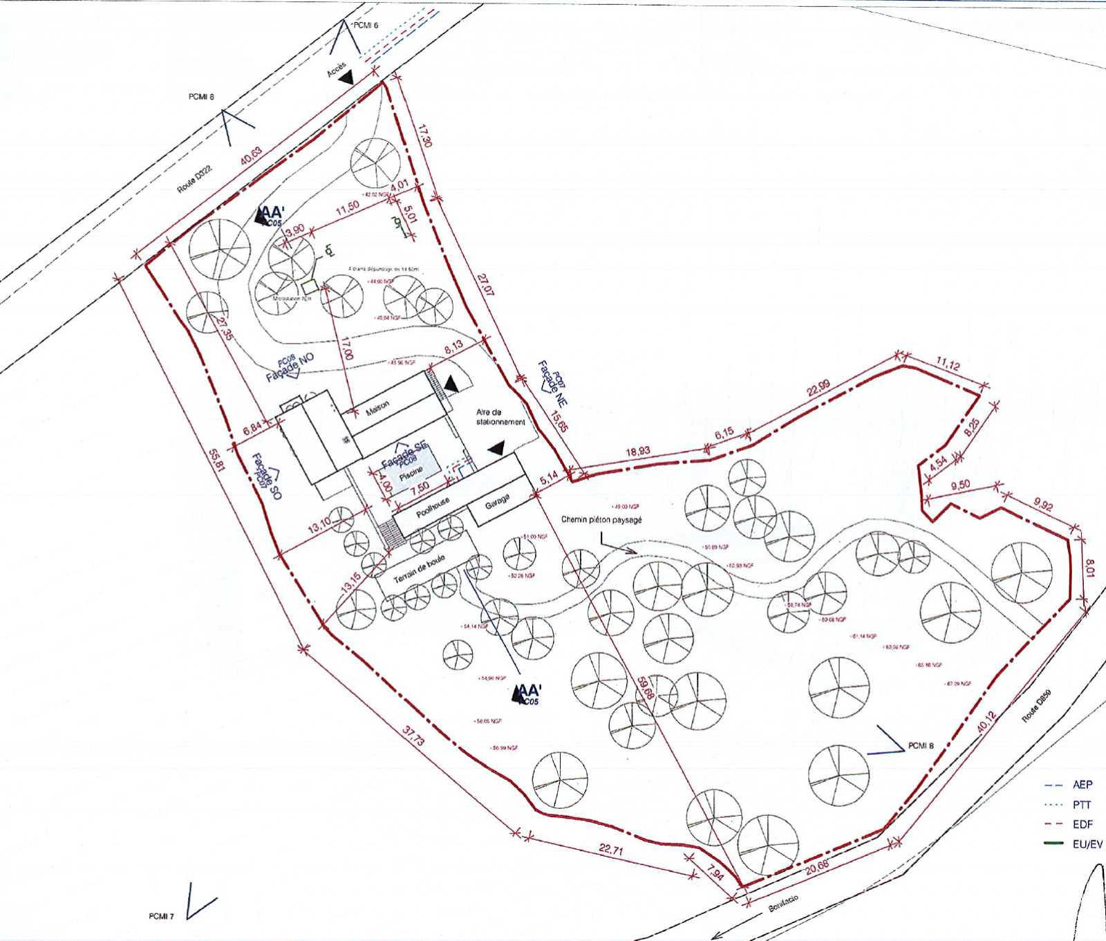
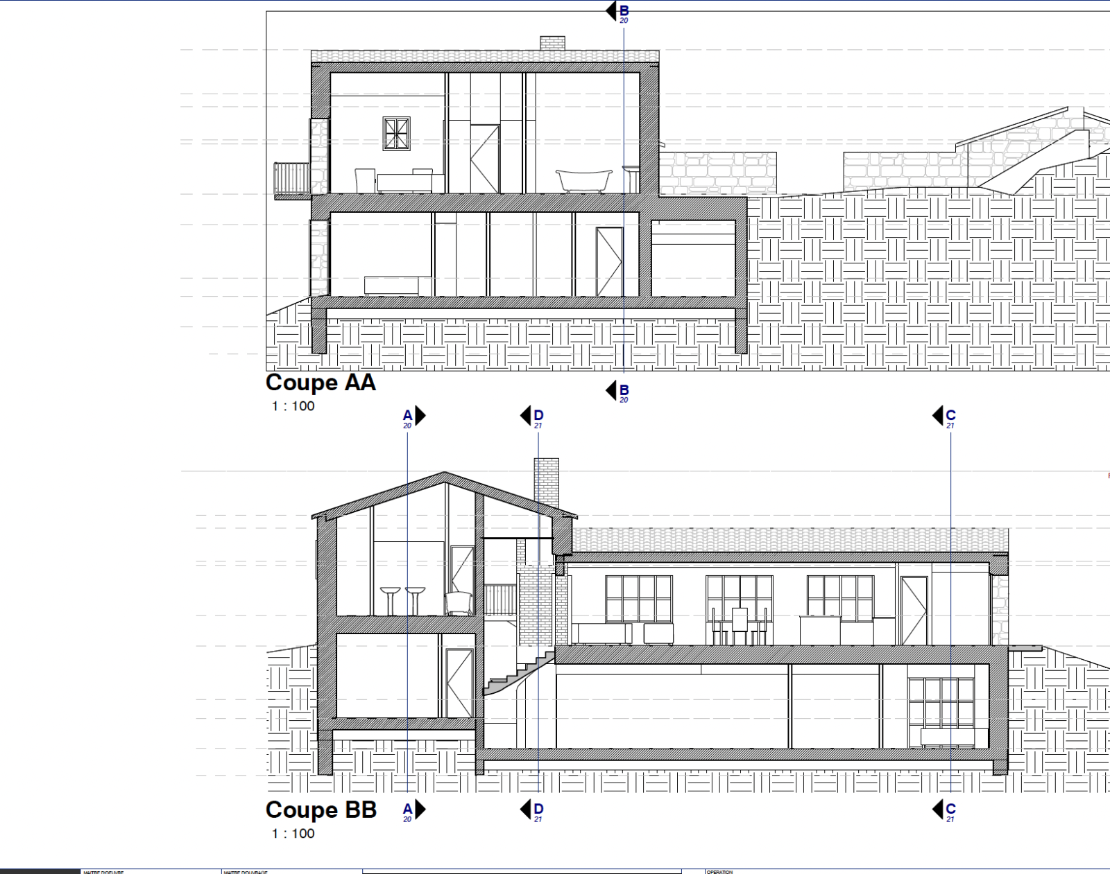
Ce terrain arboré de 5 848 m² situé à proximité des commodités du village de Figari offre une vue dégagée sur le massif de Cagna. Un permis de construire réalisé par un architecte de renom a été accordé et purgé de tous recours pour la construction d'une villa individuelle de type bergerie avec piscine, pool house et garage, le tout d'une superficie habitable de 230 m². Très beau projet architectural qui trouve son inspiration dans l'architecture vernaculaire corse et qui s'insère parfaitement dans l'environnement de ce terrain doté d'un cachet certain grâce à ses enrochements, ses oliviers pluricentenaires, ses figuiers de barbarie et ses murets en pierres sèches.

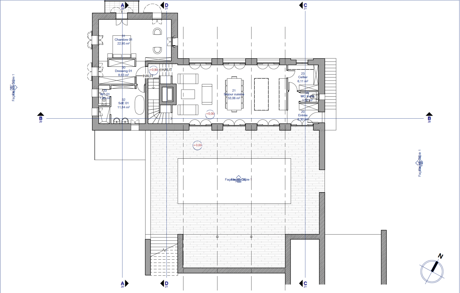
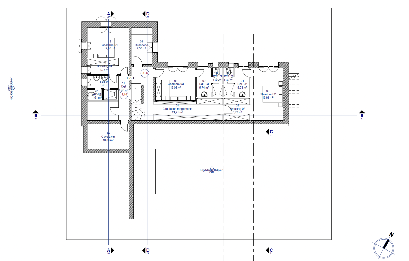
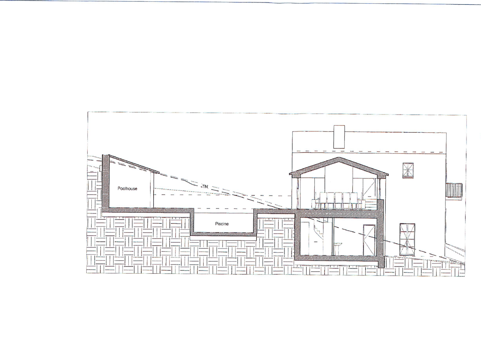
La maison est composée de matériaux tradionnels et de matériaux anciens recyclés, l'aile pricipale revêt le caractère de "maison de Maître", tandis que l'aile transversale, en pierres de ramassage, a un aspect de type "caseddu". Elle permettra d'accueillir, répartis sur 2 niveaux: 4 chambres avec salles d'eau privatives, un salon/cuisine de 53 m², un cellier, une buanderie, une cave à vin et des espaces extérieurs soignés avec pool house, piscine, terrain de boules, garage.

Un accès piéton au centre du village peut être facilement aménagé, rendant ainsi les commerces et les écoles accessibles à pied.

Figari est un village en plein essor où il fait bon vivre. L'aéroport est à 5 min de voiture, sans en subir les nuisances, les plages de Figari et Pianottoli sont à 10 min, Porto-Vecchio et Bonifacio à 20min.

Assainissement individuel à prévoir.

On aime: la vue dégagée sur la montagne de Cagna +++, le cachet du terrain++, la proximité avec les commodités+, le permis accordé réalisé par un architecte de renom qui garantit la faisabilité du projet+++

N'hésitez pas à nous contacter pour davantage de renseignements.

découvrir le bien
Prix du bien 275 000 €

Caractéristiques du bien

Caractéristiques Valeurs
Code postal 20114
surface terrain 5 848 m²
Vue MONTAGNE
Terrain constructible OUI
Surface constructible 1900
Exposition Nord-Ouest
Terrain piscinable OUI
Terrain arboré OUI
Terrain Viabilisé NON
Terrain Cloturé NON
Terrain divisible NON
Tout à l'égout NON
Accès OUI
Raccordement eau NON
Raccordement gaz NON
Raccordement électricité NON
Raccordement téléphone NON

Infos financières

Caractéristiques Valeurs
Prix de vente honoraires TTC inclus 275 000 €
Prix de vente honoraires TTC exclus 260 000 €
Honoraires TTC à la charge acquéreur 5,77 %
Ce bien vous intéresse ?
Fieldset par défaut
Fieldset par défaut
Validation

* Champs obligatoires

Contacter l'agence
Validation
Les informations recueillies sur ce formulaire sont enregistrées dans un fichier informatisé par La Boite Immo agissant comme Sous-traitant du traitement pour la gestion de la clientèle/prospects de l'Agence / du Réseau qui reste Responsable du Traitement de vos Données personnelles. La base légale du traitement repose sur l'intérêt légitime de l'Agence / du Réseau. Elles sont conservées jusqu'à demande de suppression et sont destinées à l'Agence / au Réseau. Conformément à la loi « informatique et libertés », vous disposez des droits d’accès, de rectification, d’effacement, d’opposition, de limitation et de portabilité de vos données. Vous pouvez retirer votre consentement à tout moment en contactant directement l’Agence / Le Réseau. Consultez le site https://cnil.fr/fr pour plus d’informations sur vos droits. Si vous estimez, après avoir contacté l'Agence / le Réseau, que vos droits « Informatique et Libertés » ne sont pas respectés, vous pouvez adresser une réclamation à la CNIL. Nous vous informons de l’existence de la liste d'opposition au démarchage téléphonique « Bloctel », sur laquelle vous pouvez vous inscrire ici : https://www.bloctel.gouv.fr Dans le cadre de la protection des Données personnelles, nous vous invitons à ne pas inscrire de Données sensibles dans le champ de saisie libre.
Ce site est protégé par reCAPTCHA, les Politiques de Confidentialité et les Conditions d'Utilisation de Google s'appliquent.

Localisationdu bien

  • Commerces et santé
  • Loisirs
  • Ecoles
  • Transports
  • Pratique