Nos avis clients
Nos avis clients
< class="title__content">
0

Magnifique terrain avec PC purgé pour la construction d'une villa contemporaine à Ogliastrello

Figari (20114)
Réf : VT.MR.291222

Magnifique terrain d'une superficie de 3 169 m² situé en retrait du hameau d'Ogliastrello, au calme d'une ancienne olivieraie, délimitée par d'imposants enrochements en granit.

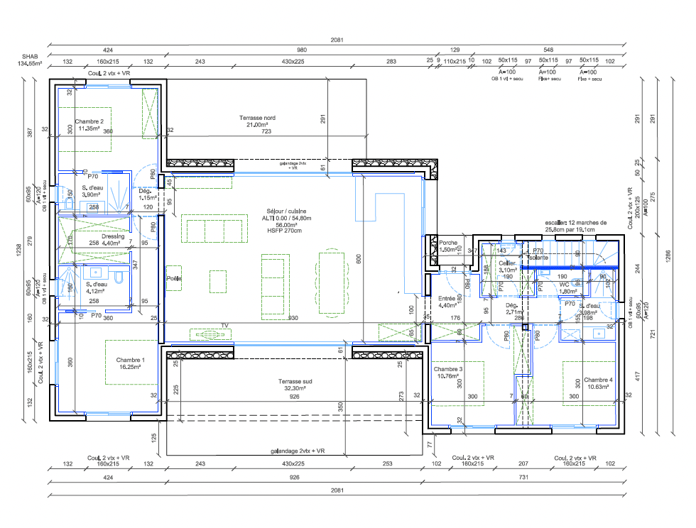
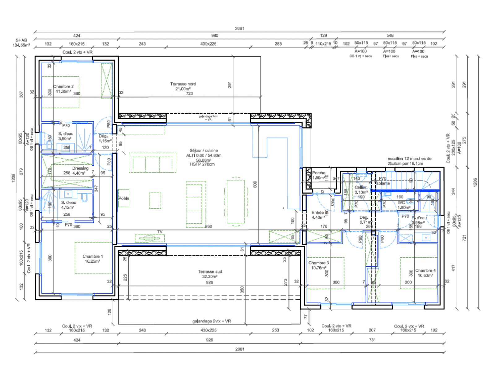
Bénéficiant d'un permis de construire purgé pour la réalisation d'une villa de plain pied, sur vide sanitaire avec cave, disposant de 4 chambres, 3 salles d'eau et d'un vaste salon/cuisine de 56m2 pour une superificie habitable de 135 m² et d'un garage indépendant de 50m² environ.

L'architecture est contemporaine, avec un toit plat et une forme en L permettant de profiter pleinement des extérieurs avec deux terrasses : l'une exposée Sud, de 32 m², couverte, donnant sur la piscine, de forme libre, déjà édifiée, et la seconde exposée Nord, idéale pour les déjeuners d'été, à l'ombre des oliviers pluricentenaires. Parement pierre sur une patie de la façade afin d'apporter du cachet.

Le terrain est raccordé à l'eau agricole et le coffret électrique est en limite de propriété.

L'environnement est préservé, sans vis-à-vis, il reflète l'authenticité de ce hameau recherché pour la qualité de vie qu'il offre, à seulement 10 min des plages de Figari et Pianottoli, 20 min de Porto-Vecchio et Bonifacio, 5 min de l'aéroport de Figari, sans en subir les nuisances.

découvrir le bien
Prix du bien

Caractéristiques du bien

Caractéristiques Valeurs
Code postal 20114
surface terrain 3 169 m²
Terrain constructible OUI
Terrain piscinable OUI
Terrain arboré OUI
Terrain Viabilisé NON
Terrain Cloturé NON
Terrain divisible NON
Tout à l'égout NON
Accès OUI
Raccordement eau NON
Raccordement gaz NON
Raccordement électricité NON
Raccordement téléphone NON

Infos financières

Caractéristiques Valeurs

Localisationdu bien

  • Commerces et santé
  • Loisirs
  • Ecoles
  • Transports
  • Pratique
Ces biens peuvent vous intéresser