Nos avis clients
Nos avis clients
< class="title__content">
0

Beau terrain plat avec vue montagne à Tarabucceta, avec PC accordé pour 2 villas avec piscine

Figari (20114)
Réf : VT.MR.200224

Situé en retrait du hameau de Tarabucceta, avec vue sur la montagne de Cagna, à proximité des vignes des domaines viticoles voisins, beau terrain plat de 2633 m² vendu avec PCVD (permis de construire valant division parcellaire) accordé et purgé de tous recours pour la construction de 2 villas avec piscine:

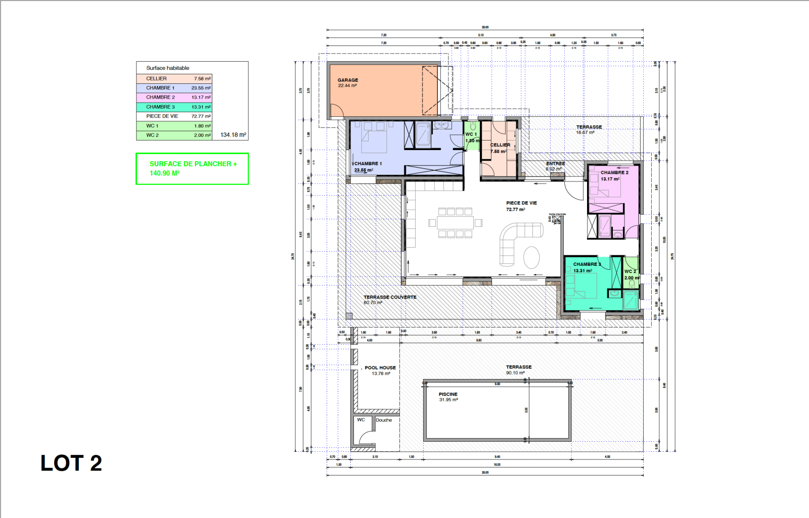
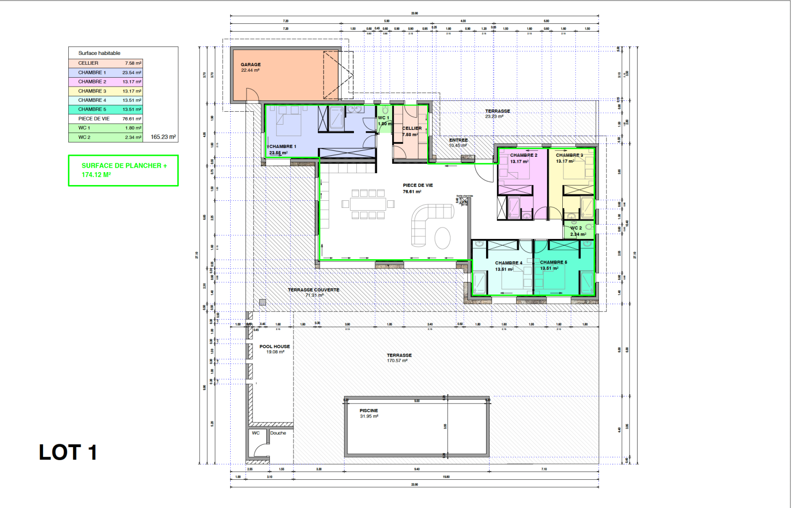
- lot 1 d'une surface de 1240m² avec villa de 165 m² habitables +piscine de 9x3,55 m
- lot 2 d'une surface de 1360 m² avec villa de 134 m2 habitables+ piscine de 9x3,55 m
Le tout pour une surface de plancher totale de 315.02 m² et une emprise au sol totale de 1029.41 m².

Les villas sont identiques, seule leur superficie diffère, avec un salon/cuisne de 76 m² habitables, l'une permettant d'accueillir 3 chambre tandis que l'autre en accueillera 5.
Les façades principales seront toutes disposées dans un axe permettant un ensoleillement agréable tout en gardant des zones d'ombres le long de la journée permettant aussi de proposer des terrasses agréables à vivre et elles seront implantées parallèlement aux courbes de niveau du terrain évitant ainsi des terrassements trop importants. Certaines façades seront habillées en pierre locale pour intégration parfaite avec le voisinage existant. Les couvertures seront réalisées en vieilles tuiles renforçant aussi l'intégration dans le paysage.


Le terrain présente des arbres de belles hauteurs comme de vieux chênes, de vieux oliviers ainsi qu'un maquis de faible hauteur, devenant plus dense sur la périphérie.


L'environnement est calme, les maisons voisines seront de type bergerie. Terrain raccordable au réseau d'assainissement collectif.


On rejoint Porto-Vecchio et Bonifacio en 20 min, l'aéroport en 10 min et les plages de la côte Ouest en 15 min. Les commodités sont accessibles en 10 min de voiture (Figari et Pianottoli).

Prix du bien

Caractéristiques du bien

Caractéristiques Valeurs
Code postal 20114
surface terrain 2 633 m²
Vue montagne
Terrain constructible OUI
Surface constructible 2633
Terrain piscinable OUI
Terrain arboré OUI
Terrain Viabilisé NON
Terrain Cloturé NON
Terrain divisible NON
Tout à l'égout OUI
Accès OUI

Infos financières

Caractéristiques Valeurs

Localisationdu bien

  • Commerces et santé
  • Loisirs
  • Ecoles
  • Transports
  • Pratique
Ces biens peuvent vous intéresser