Nos avis clients
Nos avis clients
< class="title__content">
0

Propriété avec vue dégagée à Sotta, commodités à pied et cadre paisible

Sotta (20146)
Réf : VM.EF.08042025

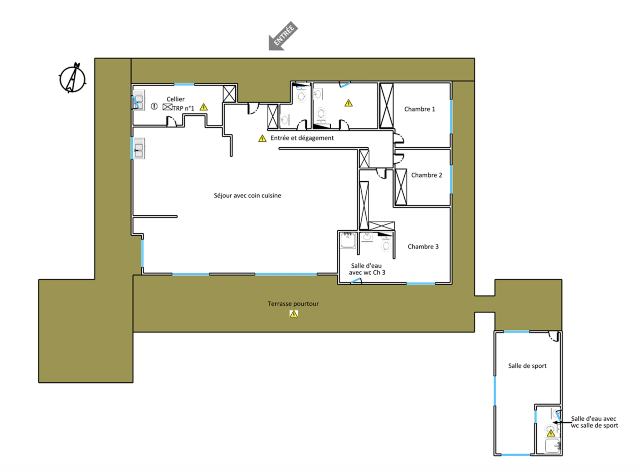
Située dans un environnement calme à quelques minutes à pied des commodités du village de Sotta, cette propriété offre un cadre de vie idéal alliant confort, intimité et polyvalence. Implantée sur un terrain de 2 000 m², elle se compose d’une maison principale, d’un appartement T2, d’un studio indépendant ainsi que d’une salle de sport, avec de belles prestations et une vue dégagée sur la campagne. La maison principale développe une surface habitable de 158 m². Elle s’ouvre sur un vaste salon-séjour lumineux avec cheminée à insert avec répartiteur de chaleur, prolongé par une terrasse et un agréable pool house avec une très belle vue dégagée sur la nature environnante. La cuisine, ouverte sur la pièce de vie, est entièrement équipée, elle est accompagnée d’un cellier fonctionnel. L’espace nuit se compose de deux chambres, d’une salle de bain, d’un WC séparé, ainsi que d’une suite parentale bénéficiant de sa propre salle d’eau et d’un dressing. Toutes les pièces sont dotées de la climatisation gainable pour un confort optimal tout au long de l’année et disposent d'un accès vers l'extérieur. Côté extérieur, la propriété dispose d’un portail électrique, d’un système d’arrosage automatique raccordé au réseau de l'office hydraulique et d’une piscine hors-sol traitée au chlore, idéale pour profiter des beaux jours en toute tranquillité. Dans le vide sanitaire, ont été aménagés un appartement T2 de 41,21 m² comprenant un salon avec cuisine ouverte, un bureau, une chambre et une salle d’eau avec douche, lavabo et WC, ainsi qu’un studio de 24,64 m² composé d’un séjour avec cuisine ouverte et d’une salle d’eau. Ces deux logements ne disposent pas de système de chauffage, mais peuvent être valorisés pour un usage ponctuel ou locatif. Une unité indépendante de 18 m² complète ce bien, équipée d'une salle d'eau avec WC et douche, offrant un espace supplémentaire selon les besoins : sport, télétravail, chambre indépendante, atelier ou stockage. Cette propriété est idéale pour une grande famille, et permet de générer un complément de revenus grâce à un investissement locatif. Sa configuration, son emplacement privilégié et ses prestations en font une opportunité rare dans le secteur recherché de Sotta, à seulement 10 minutes de Porto-Vecchio, 20 min de l'aéroport de Figari, 15 min des plages de Santa Giulia. Pour toute information complémentaire ou pour organiser une visite, contactez-nous.


Les informations sur les risques auxquels ce bien est exposé sont disponibles sur le site Géorisques
découvrir le bien
Prix du bien 799 000 €
Pièce(s) 7
Chambre(s) 7

Caractéristiques du bien

Caractéristiques Valeurs
Code postal 20146
Surface habitable (m²) 239 m²
surface terrain 2 000 m²
Surface loi Carrez (m²) 239 m²
Nombre de chambre(s) 7
Nombre de pièces 7
Nombre de niveaux 1
Vue dégagée
Nb de salle de bains 1
Nb de salle d'eau 4
Cuisine Américaine
Type de cuisine Equipée
Mode de chauffage Climatisation, Bois
Type de chauffage Air pulsé, Cheminée
Format de chauffage Individuel, Individuel
Interphone NON
Visiophone NON
Terrasse OUI
Nombre de parking 4
Exposition Sud
Année de construction 2007
Terrain piscinable NON
Terrain arboré OUI

Infos financières

Caractéristiques Valeurs
Prix de vente honoraires TTC inclus 799 000 €
Prix de vente honoraires TTC exclus 751 000 €
Honoraires TTC à la charge acquéreur 6,39 %
Taxe foncière annuelle 1 169 €

Bilans énergétiques

DPE GES
Ce bien vous intéresse ?
Fieldset par défaut
Fieldset par défaut
Validation

* Champs obligatoires

Contacter l'agence
Validation
Les informations recueillies sur ce formulaire sont enregistrées dans un fichier informatisé par La Boite Immo agissant comme Sous-traitant du traitement pour la gestion de la clientèle/prospects de l'Agence / du Réseau qui reste Responsable du Traitement de vos Données personnelles. La base légale du traitement repose sur l'intérêt légitime de l'Agence / du Réseau. Elles sont conservées jusqu'à demande de suppression et sont destinées à l'Agence / au Réseau. Conformément à la loi « informatique et libertés », vous disposez des droits d’accès, de rectification, d’effacement, d’opposition, de limitation et de portabilité de vos données. Vous pouvez retirer votre consentement à tout moment en contactant directement l’Agence / Le Réseau. Consultez le site https://cnil.fr/fr pour plus d’informations sur vos droits. Si vous estimez, après avoir contacté l'Agence / le Réseau, que vos droits « Informatique et Libertés » ne sont pas respectés, vous pouvez adresser une réclamation à la CNIL. Nous vous informons de l’existence de la liste d'opposition au démarchage téléphonique « Bloctel », sur laquelle vous pouvez vous inscrire ici : https://www.bloctel.gouv.fr Dans le cadre de la protection des Données personnelles, nous vous invitons à ne pas inscrire de Données sensibles dans le champ de saisie libre.
Ce site est protégé par reCAPTCHA, les Politiques de Confidentialité et les Conditions d'Utilisation de Google s'appliquent.

Localisationdu bien

  • Commerces et santé
  • Loisirs
  • Ecoles
  • Transports
  • Pratique