Nos avis clients
Nos avis clients
< class="title__content">
0

Résidence de tourisme 4* composée de 4 villas T4 et d'un studio, piscine partagée, plage de Cala Rossa à pied

Lecci (20137)
Réf : VP.MR.211222

Résidence composée de 4 villas de standing et d'un studio, avec espace piscine partagé, au sein d’un lotissement sécurisé par un portail électrique, à proximité immédiate de la plage de Cala Rossa que l'on rejoint en 8 min à pied.

Construites en 2002, les maisons sont de plain-pied et s'ouvrent toutes sur une terrasse en bois et l'intimité d'un jardin privatif clos d'environ 200 m² chacun.

Les espaces partagés sont arborés, l'agencement des maisons permet d'éviter tout vis-à-vis.

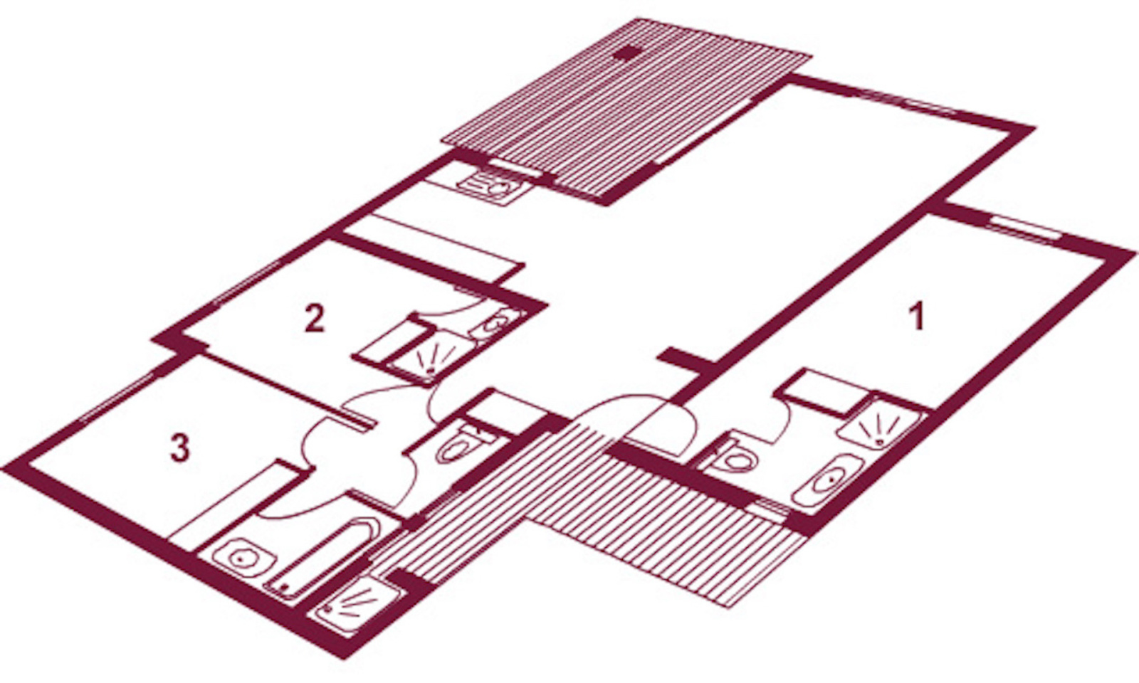
Les 4 villas de type F4 présentent une superficie de 90m2 chacune et se composent d'une entrée, d'un coin nuit composé de 2 chambres avec placards, dont une avec salle d'eau privative, d'une salle de bain indépendante et d'un WC indépendant, d'un séjour de 33m2, d'une cuisine ouverte donnant sur une terrasse de couverte de 14m2, d'une chambre parentable avec placard, coffre fort et salle d'eau complète (WC, douche et vasque).

Le studio, d'une superficie de 21,50m2 dispose quant à lui d'une terrasse couverte de 9m2.

Les maisons et le studio sont fonctionnels, entièrement climatisés, les fenêtres sont dotées de moustiquaires, les maisons sont en parfait état d'entretien.

L'espace piscine se compose d'un espace vert, d'une terrasse bois permettant d'accueillir des transats et d'une piscine coque de 8x4m à fond plat.

Raccordée au réseau d'assainissement collectif par une pompe de relevage. Arrosage automatique.

L'emplacement est calme et recherché, on rejoint Porto-Vecchio en 10 min, les commodités en 7 min, dépôt de pain accessible à pied.

Idéal investisseur, cette résidence est exploitée depuis 2002 en meublés de tourisme, les 4 villas sont classés 4* tourisme, bien vendu entièrement meublé et équipé.

 

Les informations sur les risques auxquels ce bien est exposé sont disponibles sur le site Géorisques
découvrir le bien
Prix du bien
Pièce(s) 17
Chambre(s) 12

Caractéristiques du bien

Caractéristiques Valeurs
Code postal 20137
Surface habitable (m²) 432 m²
surface terrain 2 297 m²
Surface loi Carrez (m²) 360,24 m²
Nombre de chambre(s) 12
Nombre de pièces 17
Nb de salle de bains 4
Nb de salle d'eau 9
Cuisine Américaine
Type de cuisine SEMI-EQUIPEE
Mode de chauffage Climatisation
Type de chauffage Air pulsé
Format de chauffage Individuel
Interphone NON
Visiophone NON
Terrasse OUI
Exposition Nord
Année de construction 2002

Infos financières

Caractéristiques Valeurs
Les honoraires d'agence seront intégralement à la charge du vendeur  
Taxe foncière annuelle 5 358 €

Localisationdu bien

  • Commerces et santé
  • Loisirs
  • Ecoles
  • Transports
  • Pratique
Ces biens peuvent vous intéresser